kulturzentrum
1.preis 1992
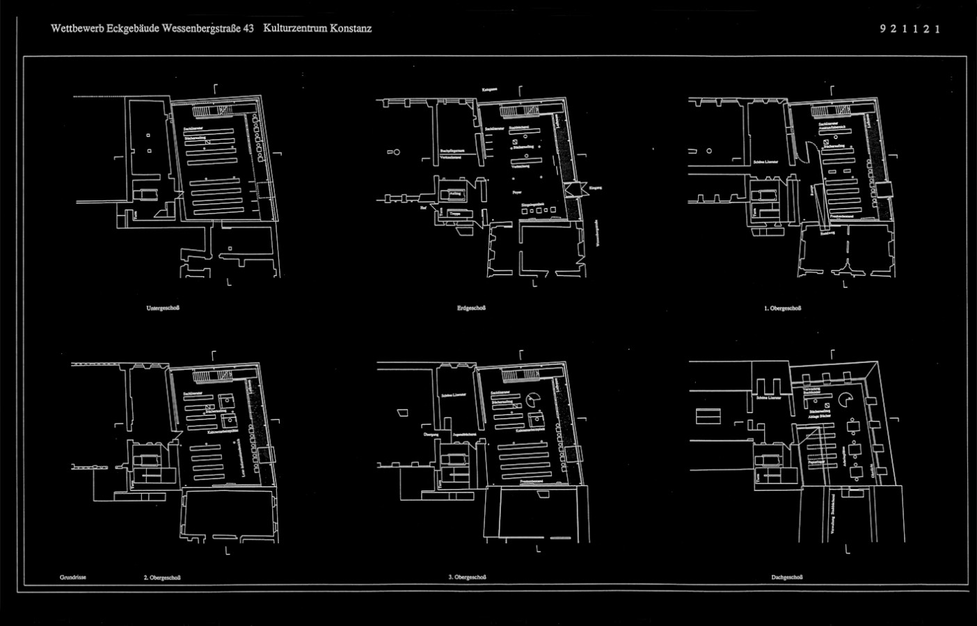
wettbewerb kulturzentrum mit integrierter bibliothek in der altstadt konstanz
entwicklung und verbindung verschiedener kulturbauten mit neubau am münsterplatz und sanierung von denkmalgeschützten bauwerken in konstanz












erläuterungstext
das wettbewerbsgebiet wird durch das münster und seine historische umgebung geprägt. das kulturzentrum, das mit seinen verschiedenen institutionen in diese bebauung integriert wird, erstreckt sich über mehrere gebäude hinweg entlang der so genannten wessenbergstraße und der katzgasse. durch die Schließung des Quartiers, den Neubau an der ecke, erhalten die kulturinstitutionen ihr eigentliches zentrum mit gemeinsamem eingang neben den bestehenden eingängen. die hofbebauung - turmhaus katzgasse 1 - und turmhaus katzgasse 5 - werden durch ein weiteres körperhaftes element ergänzt. mit dem eckgebäude wird versucht die traditionellen städtebaulichen und körperlichen gesetzmäßigkeiten zu zerlegen und diese neu zusammenzufügen. als konstruktion wird eine dem bücherregal verwandte stapelartige rahmenkonstruktion gewählt, welche die eckaussteifung aufnimmt, als auch den bestehenden fresken bestand gewährt. die fassade besteht aus drei teilen, aus der äußeren, horizontale gegliederten glasfassade, die die rein schützende und schließende funktion des gebäudes übernimmt (haut); aus einem eingestellten winkel als element der lochfassade und aus dem konkret definierten eingang. das dach folgt den firstlinien der umgebenden bebauung.