haus beckert
haus beckert in rottweil
2000 fertigstellung













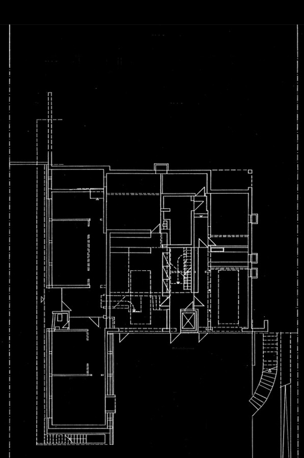
das haus beckert in rottweil stellt einen architektonischen beitrag zum entwurf einer grossen modernen villa dar. das gebäude gliedert sich in drei gebäudeteile. die mitte des bauwerks, das wohnen/essen wird als kubus aus verschiedenen glasarten gestaltet. innenhof, aus- und einblicke, bezüge zu den weiteren bausteinen und die transparenz zu den aussenräumen zeichnen das zentrum des gebäudes aus. dieser baukörper wird einerseits im osten durch den büro/kindertrakt und aufgestellt auf die wohnfunktionen durch den schlaftrakt vervollständigt. die begleitenden baukörper sind mit schwarzem schiefer verkleidet. durch das verschieben und aufsatteln dieser schwarzen gebäudeteile entstehen neue funktionen, bezüge, plätze, richtungen im aussenraum und die übergänge innen - aussen werden definiert. so entsteht der eingangshof, der zugang der gäste, der private zugang, freisitze u.a.. im innenraum werden die nahtstellen der funktionen thematisiert und differenziert gestaltet. neben dem innenausbau und einbauelementen in kirschholz, sind die farben schwarz/grau/weiss und die bezüge zu den aussenräumen vorherrschend.
projektdaten
Standort
hausener strasse 21
78628 rottweil
Bauherr
benedikt beckert
rottweil
Architekten
bächlemeid architekten stadtplaner bda
karin meid-bächle, martin bächle
Mitarbeiter
stefan ruff
beate schneider
Tragwerksplanung
ib czerny + zimmerer
78048 villingen-schwenningen
hls planung
ib könig
78628 rottweil
Planung Elektro
stromlinie lichtplanung
konstanz
Bauzeit
1997 - 1999
Fotos
martin bächle
konstanz